Beschrijving

In rustige woonwijk gelegen, royaal uitgebouwd geschakeld WOONHUIS met LIVING ca 60m2, WERKKAMER en BERGING(voorheen garage) en zonnige ca 13m  zonnige achtertuin(W) met royaal overdekt terras, direct grenzend aan royaal plantsoen en nabij basisschool/ kinderdag verblijf, op loopafstand van bossen, winkelcentrum en nabij alle voorzieningen. ENGLISH BELOW

BEZICHTIGING? PLANNEN WE GRAAG VOOR U IN. STUUR ONS EEN EMAIL MET UW GEGEVENS(naam, adres telefoonnummer en email) NAAR INFO@DAMENMAKELAARDIJ.NL OF VIA LINK OP FUNDA,  DAN NEMEN WIJ CONTACT MET U OP OM EEN AFSPRAAK IN TE PLANNEN.
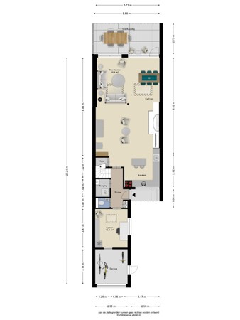
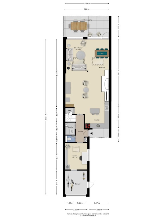
Indeling: hal met luxe toilet ('15) en cv/bergkast met Nefit HR combiketel('14) en aansl. wa., riant uitgebouwde woonkamer met bergkast, 2 lichtkoepels, zitgedeelte met tuindeur naar royaal overdekt terras.
Woonkamer in open verbinding met open keuken met luxe lichte keukeninrichting (ca '20) v.v. kookplaat, vaatwasser, combi-magnetron, koelkast en afzuigkap en zicht op voorzijde. 

Totale living ca 60m² met originele tegelvloer en tuindeur naar royaal overdekt verandaterras ca 18m2 en zonnige ca 13m diepe achtertuin(grenzend aan royaal plantsoen) met tuinhuis en achterom. 

Vanuit hal eveneens toegang tot werkkamer ca 10m2 met zijraam en lichtkoepel, deur naar berging ca 9m2 met kunststof buitendeur en kunststof-roldeur. naar oprit. Werkkamer en berging mogelijk weer garage ca 19m². 

1e verdieping: overloop, 3 ruime slaapkamers resp. 13, 12 en 9m2  (2 met zolderbergingen), lichte badkamer (’02) met ligbad, aparte douche, 2e toilet, designradiator en vaste wastafel.

Overal dubbel glas(gedeeltelijk HR++).  Gedeeltelijk rolluiken 1e verdieping. Energielabel C. 
Platte daken vernieuwd: 2015 en 2020

Geen inkijk voor- en/of achterburen. 

Koper dient met ruime modernisering rekening te houden.

Inhoud: ca 490m3. Bouwjaar: 1976, nadien verbouwd: Woonoppervlak: ca 130m2. Overige inpandige ruimte 9m2. Perceelgrootte: 244m².

=============================================================================
Located in a quiet residential area, this spaciously extended semi-detached house features a living room of approximately 60m², an office and storage room (formerly a garage), and a sunny west-facing back garden of approximately 13m with a generous covered terrace. It borders a large park and is close to a primary school/daycare center, within walking distance of woods, a shopping center, and all amenities.

Layout: entrance hall with a luxurious toilet (2015) and a central heating/storage cupboard with a Nefit HR combi boiler (2014) and water connections. Spacious extended living room with a storage cupboard, two skylights, and a sitting area with French doors leading to a spacious covered terrace.

The living room opens onto the open kitchen with a luxurious, bright kitchen unit (ca. 2020) equipped with a hob, dishwasher, combination microwave, refrigerator, and extractor hood, and offers a view of the front of the house.

The living room, approximately 58m², features the original tiled floor and a French door leading to a spacious covered veranda (approx. 18m²) and a sunny, approximately 13m-deep back garden (adjacent to a large park) with a garden shed and rear access.

From the hall, there's also access to a study of approximately 10m² with a side window and skylight, and a door to the storage room of approximately 9m² with a plastic exterior door and a plastic roller door. This leads to the driveway. The study and storage room could potentially be converted into a garage of approximately 19m².

First floor: landing, three spacious bedrooms measuring 13, 12, and 9m² (two with attic storage), a bright bathroom (built in 2002) with a bathtub, separate shower, second toilet, designer radiator, and washbasin.

Double glazing throughout (partly HR++). Partial roller shutters on the first floor. Energy label C.

Flat roofs replaced in 2015 and 2020.

No view from front or rear neighbors.

Buyer should anticipate extensive modernization.

Volume: approx. 490m³. Year of construction: 1976, subsequently renovated. Living area: approx. 130m². Other indoor space: 9m². Plot size: 244m².

=============================================================================
Bezichtiging:
Een woning kopen is meer dan alleen de woning op zich, daarom is het voor u als aspirant koper van groot belang dat u een goede indruk krijgt van de woonomgeving van deze woning. Verstandig is het dan ook om vooraf de directe woonomgeving te bekijken alvorens u een afspraak voor een bezichtiging maakt. Ook voor een verkoper is een bezichtiging een spannend moment en daarom verzoeken wij u binnen enkele dagen na een bezichtiging uw reactie aan ons door te geven zodat wij de verkoper kunnen informeren over het resultaat van uw bezichtiging. Natuurlijk kan dit met een kort telefoontje of e-mail naar ons.

Onderzoeksplicht koper/mededelingsplicht verkoper:
De verkoper van een woning heeft een zogenaamde meldingsplicht, terwijl de koper een onderzoeksplicht heeft. Wij gaan ervan uit dat u als aspirant koper, voor dat u een bod uitbrengt, onderzoek heeft gedaan naar alle aspecten, die in het algemeen en voor 
u in het bijzonder, van belang zijn bij het nemen van de aankoopbeslissing. Wij adviseren onder andere het bestuderen van de door ons aangeboden informatie, het navragen van informatie bij gemeente en/of andere instellingen. Om u daarbij te ondersteunen hebben wij voor u de volgende bescheiden ter inzage: eigendomsbewijs, kadastraal uittreksel en de woning vragenlijst ingevuld door de verkoper. 

Financiering:
Uiteraard is ook een onderzoek naar uw eigen financiële mogelijkheden erg belangrijk. Graag brengen wij u in contact met specialisten die uw financiële mogelijkheden samen met u op een rijtje zetten. 

Bedenktijd:
In het kader van de “wet koop onroerende zaken” wordt de koper beschermd door de bedenktijd van 3 dagen waarvan minimaal 2 werkdagen. Deze bedenktijd gaat in nadat de koper de door beide partijen ondertekende koopovereenkomst heeft ontvangen. Wij streven ernaar om binnen 5 werkdagen nadat de mondelinge overeenstemming is bereikt, de overeenkomst door beide partijen te laten ondertekenen.

Waarborgsom / Bankgarantie:
Tot zekerheid voor de nakoming van de verplichtingen dient de kopende partij, binnen vier weken na het bereiken van de mondelinge overeenkomst, een waarborgsom van 10% van de koopsom te storten in handen van de notaris. Het is de kopende partij ook toegestaan een bankgarantie te stellen ter grote van dit bedrag. Indien de ontbindende voorwaarde financiering wordt overeengekomen, dan zal deze voor een periode van 3 tot 6 weken na de mondelinge overeenkomst worden opgenomen. 

Verantwoording:
Alle informatie die wij in deze brochure verstrekken is niet meer dan een uitnodiging om in onderhandeling te treden. Ondanks dat wij grote zorg besteed hebben aan de samenstelling van deze brochure kunnen wij echter geen enkele aansprakelijkheid aanvaarden ten aanzien van de juistheid ervan. Alle aanbiedingen zijn vrijblijvend. Alle opgegeven maten zijn indicatieve maten.

Kenmerken